Posted on August 26, 2025
Post categories: Community Engagement Graduate High Performance Building Material & Fabrication Research
Students: Joy Muñoz
Studio: ARCH 504 — Myer Harrell — Winter 2024
Location: Seattle, Washington
Terrace Kitchen reimagines the role of a community center by directly addressing food insecurity in Rainier Beach, a neighborhood historically underserved and facing limited access to fresh produce. More than just a building, it is a space that connects people through the act of growing, preparing, and sharing food. Its mission is to improve access to healthy nutrition while strengthening community resilience.

Terrace Render.
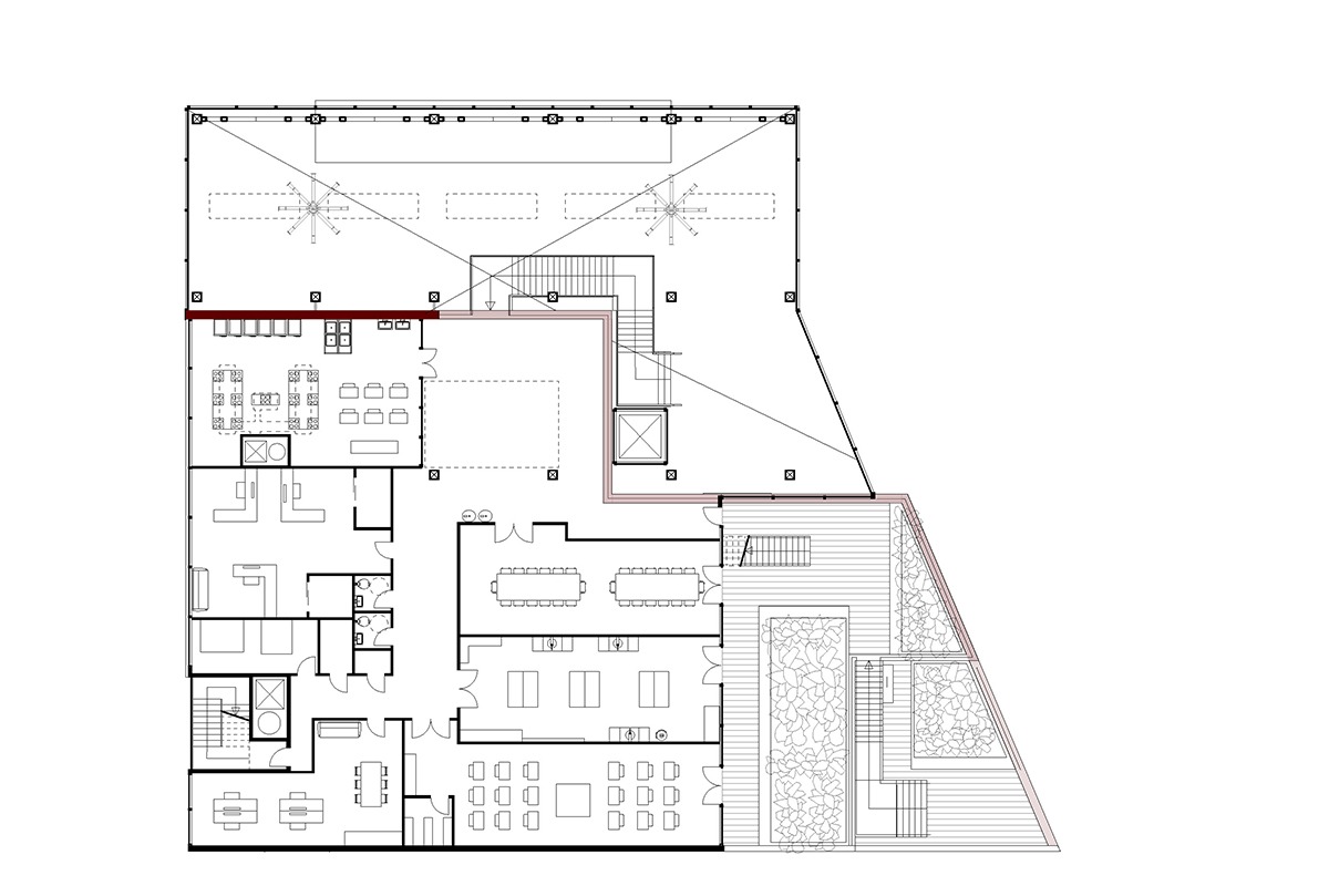
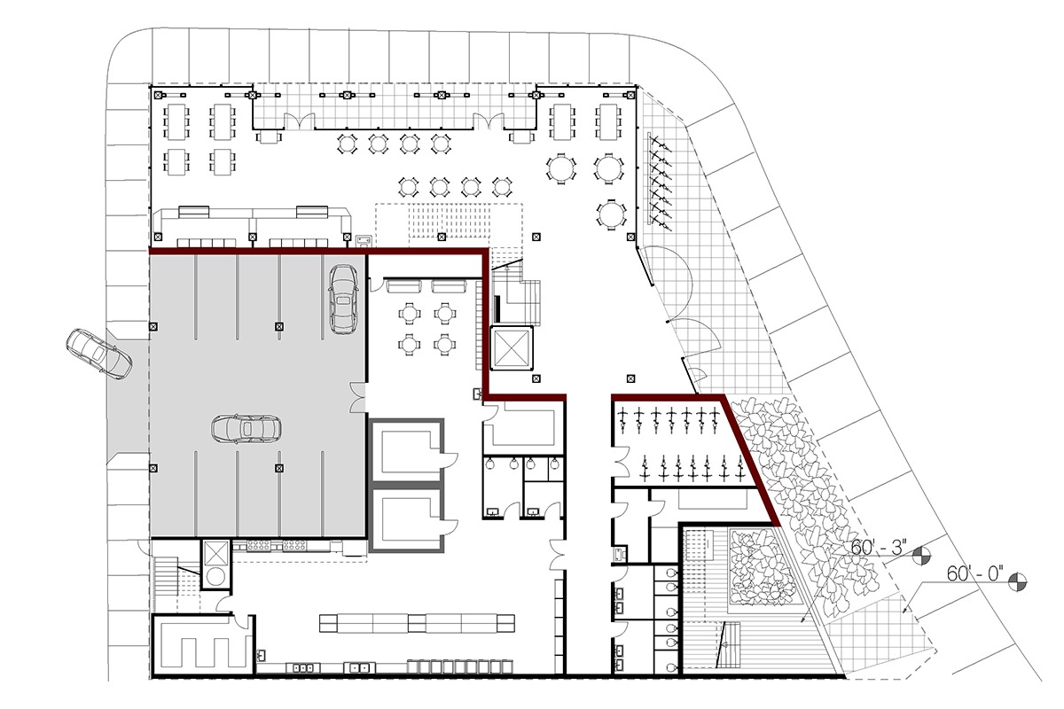
The design centers around three key programs: terraced gardens that invite hands-on learning in cultivating food, a commissary kitchen that supports local entrepreneurs and shared cooking, and classrooms paired with teaching kitchens where residents can learn about nutrition, culinary skills, and sustainable food systems. Together, these spaces form a cycle of growth, education, and community empowerment.

TERRACE KITCHEN Sketches.
Materiality also plays a role in telling the story. The structure blends mass timber with rammed earth, celebrating natural textures and grounding the building in its environment. Subtle details—like the warmth of wood meeting the tactile quality of earth—create a welcoming atmosphere that reflects the values of nourishment and connection. Terrace Kitchen demonstrates how thoughtful design can address pressing social needs while fostering pride and sustainability in a community.

Structure plan and Axonometric.

Diagram and Wall Detail.
Images from TERRACE KITCHEN.
Explore Images.