Skip to content
Render of the South West corner of the CONIFER.

CONIFER

Students: Chlo Duttry
Studio: ARCH 503 — Rick Mohler — Autumn 2024
Location: Seattle, Washington

Project Description

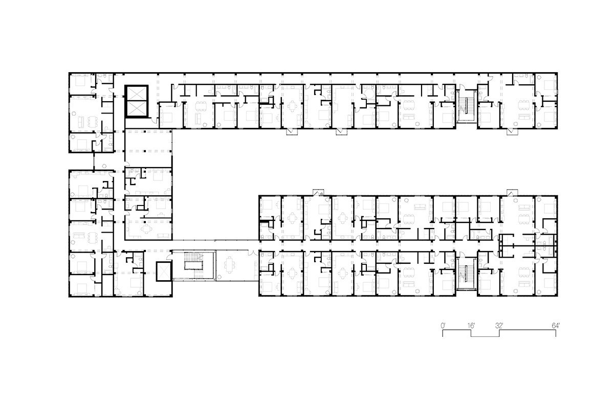
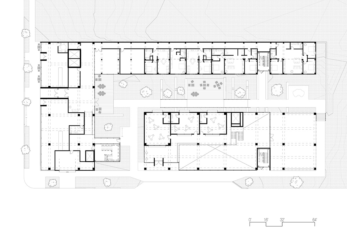
Conifer reimagines urban housing in Rainier Beach, Seattle, by uniting sustainability, community, and inclusivity. This five-story mixed-use complex supports residents of all ages, from young families to older adults, through a range of housing options and generous shared spaces. The design responds to the neighborhood’s need for accessible housing while promoting vibrant, daily interactions between generations.

Short alt text

          Rendering of the Conifer community room.

At the heart of Conifer is a lush green stormwater infrastructure courtyard that manages runoff while creating a calm, communal outdoor retreat. Residents share amenities including a large daycare center, fitness gym, and community kitchens that encourage social connection and resource sharing. Housing units range from studios to three-bedroom layouts, accommodating diverse household sizes. The building’s mixed-use nature and sustainable strategies strengthen the local fabric by reducing environmental impact and fostering a sense of belonging. Conifer offers a model for how urban development can serve both people and planet in equal measure.

Short alt text

          Rendering of the Conifer street front.

 

Images from the CONIFER.

Conifer Site PlanConifer Typical Residential LevelConifer AxonometricContextual Axon Diagram showcasing amenities, storefronts, balconies, and stairs.CONIFER SectionConifer ariel perspective renderConifer Courtyard RenderConifer Interior Unit RenderConifer Interior Facade

Explore Images.